
Foto: Georg Aerni

Foto: Georg Aerni

Foto: Hannes Henz

The House: A Manual to Rural Architecture

Foto: Graber Pulver

Foto: Graber Pulver
Foto: Graber Pulver

Gottfried Semper, Illustration zum Thema Knoten

Foto: Graber Pulver

Foto: Walter Mair

Foto: Graber Pulver

Foto: Georg Aerni

Herzog & De Meuron, Erschliessungsraum

Foto: Graber Pulver

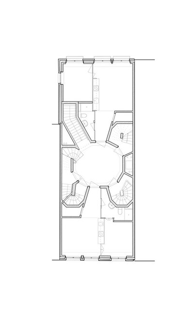
KilgaPopp Architekten, Neubau Wohnhaus Neumarkt 5, Winterthur, 2014

Schema

Foto: Georg Aerni
RAUMKNOTEN
Wodurch entsteht räumliche Spannung? Ein Raumknoten hat die Kraft, die Koordinaten für eine innenräumliche Szenografie zu setzen und räumliche Schlüsselstellen zu formulieren. Der Übergang von horizontalen in vertikale Verbindungen, Raumgeometrien, die ineinander übergehen, der bewusste Einsatz von Perspektive – dies sind Mittel, die die Wahrnehmung von Raum zum Erlebnis werden lassen. Der Raumknoten ist damit kein wörtlich zu nehmendes Gebilde, er entsteht als Erfahrung von Komplexität in der Klarheit einer räumlich-architektonischen Lösung.